Projekt kulturer.be
Landeskunde > Städte > Freiburg > Münster
![]()
Für den Zugang zum Münster gibt es drei Wege: Der erste
beginnt, von der Herrenstraße kommend, am Chorhaupt, dem
jüngsten Bauteil des Münsters. Es zeigt mit seinen regelmäßig
und filigran gestalteten Strebepfeilern die ausgereiftesten Formen
der Gotik.
Als Zugang zum Chor dienten an der Nord- und der Südseite zwei Chorseitenportale, das Schöpfungsportal und das Marienportal.
Die beiden Querhäuser sind der älteste Teil des Münsterbaus,
noch vollständig in romanischen Formen errichtet. Dem südlichen
Querhaus (Bild) ist eine Renaissance-Vorhalle vorgelegt. Auch die
Hahnentürme im Winkel zwischen Querhaus und Chor gehören
der romanischen Bauperiode an. Auf das Querhaus stößt
man, wenn man von der Schusterstraße her die schmale Buttergasse
nimmt.
Die Langhausseite überrascht durch einen reichen Schmuck
an Wasserspeiern.
Der Besucher, der von der Kaiser-Joseph-Straße
(Fußgängerzone) und die Münstergasse kommt, steht
vor der mächtigen Turmfassade. Der Turm steht deutlich vor
das Langhaus gerückt, eine Vorhalle in seinem Unterbau öffnet
sich mit reichem Figurenschmuck ein einziges Hauptportal in die
Kirche.
Bild: © Edition March, J. Gass, March-Neuershausen
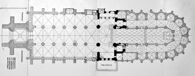
Der Grundriss des Münsters verdeutlicht die erhaltenen Reste des romanischen Gründungsbaus (schwarz), zeigt links daran anschließend das gotische Langhaus mit dem davor gestellten Turm sowie den im Osten (rechts) erneuerten und wesentlich über die ursprünglichen Maße des romanischen Chors hinaus gehenden spätgotischen Umgangschor.
| im Detail: | |
| siehe auch: | |
| weiter: |
Startseite | Service | Aktuelles | zur ZUM | © Landeskunde online/ kulturer.be 2017